131 Greenwich Heath NWCalgary, AB T3B 6P2




Mortgage Calculator
Monthly Payment (Est.)
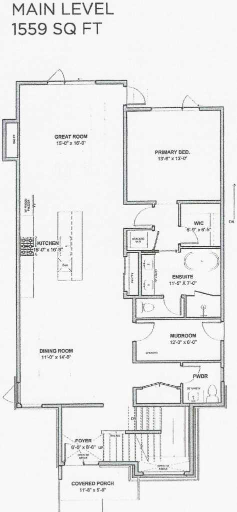
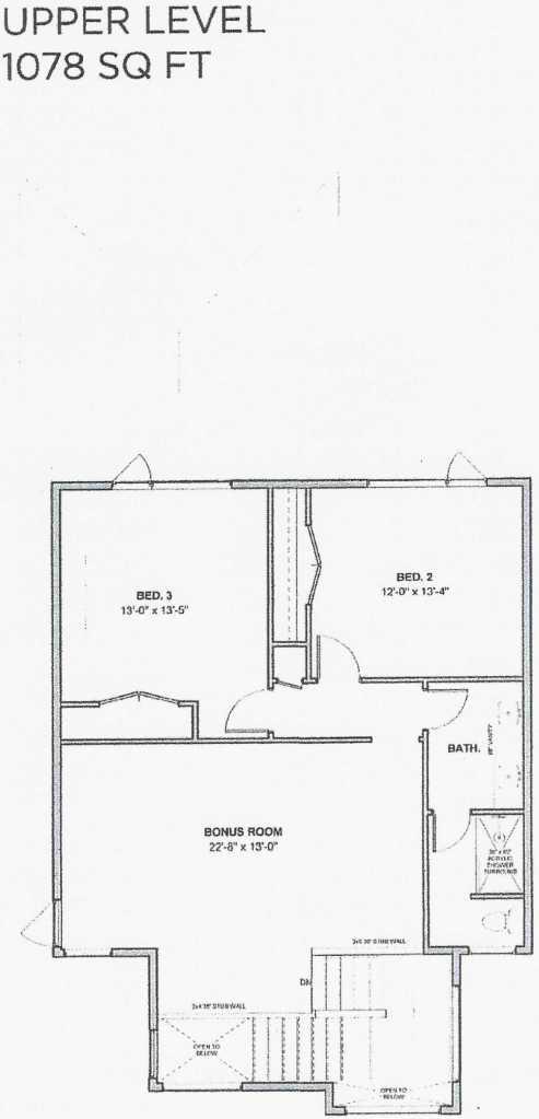
$8,897MULTI-GENERATIONAL LIVING/INCOME POTENTIAL! The Nolita II offers 2,637ft2 of well-appointed living space. The main floor features a master bedroom with ensuite, an open concept living area that includes a great room, kitchen, and living room, as well as a generous mudroom. The upper floor includes two additional bedrooms, the main bath, and a spacious bonus room. The fully developed basement of this home includes a finished recreation room and full bathroom for the main house plus a complete 1-bedroom legal suite with a separate entrance. The property also includes a detached triple garage with a 2-bedroom fully finished garden suite above. (legal Suites can be redesigned to make the home 'single-family' living.) As a Custom Concepts’ Personalized Home this home offers the perfect balance of convenience and customization, allowing you to jump-start the build process by approximately six months. The initial design, permitting, foundation, and framing are already completed, so you can begin personalizing at the rough-in stage. If you're looking for a quicker build process and a faster move-in date with the added benefit of tailoring your home to your design preferences, our Personalized Homes might be the perfect choice for you. Upper Greenwich is a distinctive community nestled on the west edge of Calgary – an easy commute to downtown with quick access to the Rocky Mountains. Upper Greenwich is a lovely blend of sophisticated urban living in natural surroundings. Walking paths, sport courts, playgrounds and abundant greenspaces can be enjoyed right outside your front door. The HOA ensures upkeep of the amenities of the community and helps bring people together with seasonal celebrations and neighborhood events. Upper Greenwich is a community that is connected, active and thriving!
| 3 days ago | Listing first seen on site | |
| 4 days ago | Listing updated with changes from the MLS® |
Listing information is provided by Participants of the Alberta One Realty Listing Services (Pillar 9). IDX information is provided exclusively for personal, non-commercial use, and may not be used for any purpose other than to identify prospective properties consumers may be interested in purchasing. Information is deemed reliable but not guaranteed. Copyright 2026, Alberta One Realty Listing Services (Pillar 9)
Last checked 2026-03-17 12:17 PM UTC


