723 Kenderdine BoulevardTurtle Lake, SK S0M 2Y0




Mortgage Calculator
Monthly Payment (Est.)
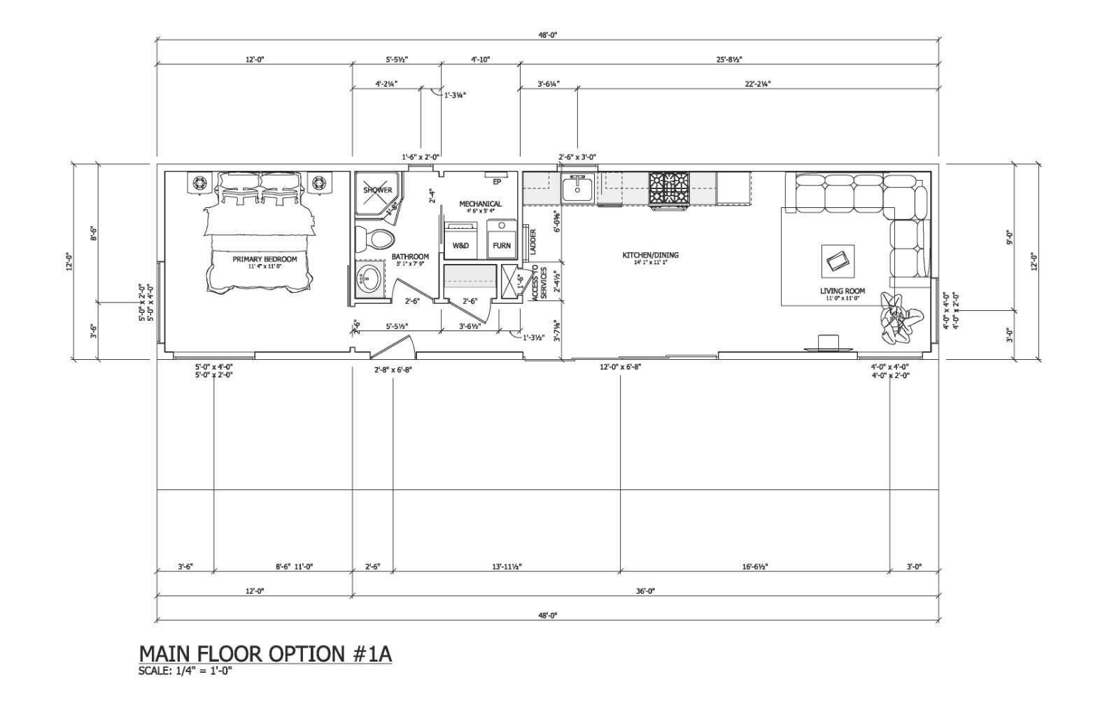
$1,460723 Kenderdine Boulevard – Sunset View Beach Modern design meets lakeside living at Sunset View Beach, just steps from the waterfront. This 12’ x 48’ modular home is built on a screw pile foundation and offers an efficient, thoughtfully designed layout, ideal as a recreational retreat or seasonal getaway. The home features 2 bedrooms, luxury vinyl plank flooring, and a warm, contemporary finish with shiplap pine ceilings and walls. The kitchen and bathroom feature quartz countertops, and the bathroom includes a tile-surround shower with a glass door. Custom millwork in the bedrooms adds smart storage, while the loft provides extra sleeping or storage space. In-home laundry adds everyday convenience. Comfort is provided by an air-source heat pump with a backup electric furnace, offering efficient year-round climate control. Triple-glazed windows further enhance energy efficiency. A major value-add: the lot already has septic, power, and water installed, reducing setup time and costs. The modern exterior and clean lines complement the natural beach setting, making this a turnkey opportunity in a desirable waterfront community.
| a week ago | Listing first seen on site | |
| a week ago | Listing updated with changes from the MLS® |
Listing information is provided by Participants of the Alberta One Realty Listing Services (Pillar 9). IDX information is provided exclusively for personal, non-commercial use, and may not be used for any purpose other than to identify prospective properties consumers may be interested in purchasing. Information is deemed reliable but not guaranteed. Copyright 2026, Alberta One Realty Listing Services (Pillar 9)
Last checked 2026-01-31 05:57 PM UTC



Did you know? You can invite friends and family to your search. They can join your search, rate and discuss listings with you.