41 Terra CloseRed Deer, AB T4P 0T7




Mortgage Calculator
Monthly Payment (Est.)
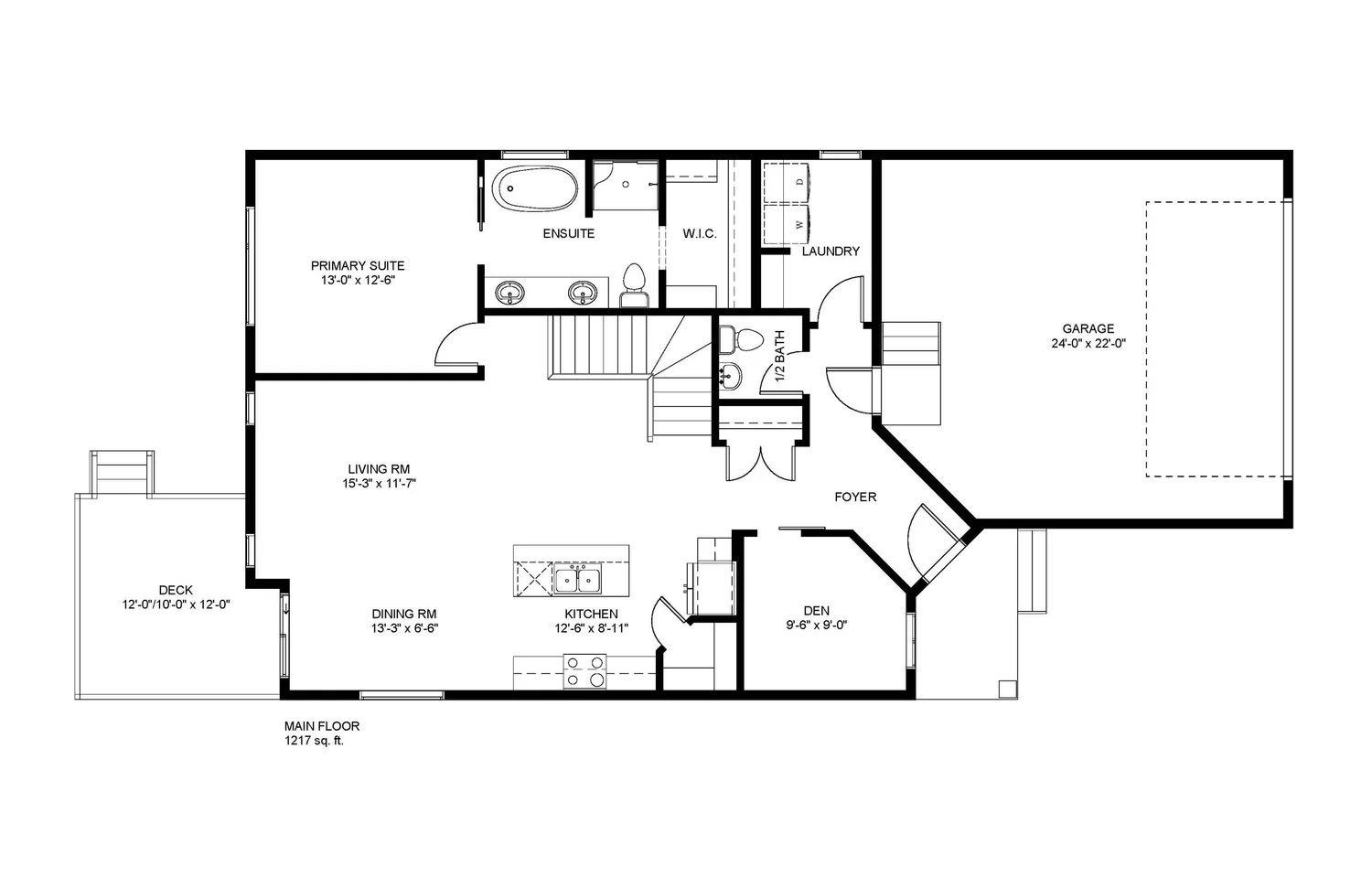
$3,193BRAND NEW BUNGALOW ON A PIE LOT! Welcome to maintenance free living in The Timbers, one of Red Deer’s most sought after communities! This stunning community offers executive single-family homes that come fully fenced and landscaped, with no restrictions on age or pets, and all of your yard work, mowing, and shovelling in the winter are taken care of for you! The Rochester is a bright and open floor plan offering 1,217 sq ft above grade, 9' ceilings, main floor laundry, and vinyl plank flooring throughout the main living space. The two tone kitchen offers raised cabinetry, stainless steel appliances, quartz countertops, a large island with under mount granite sink and bar seating, and a spacious corner pantry. Sliding patio doors off the dining area lead out to a spacious deck overlooking the yard, and the adjacent living room is a great place to relax and unwind. The primary bedroom features a large walk in closet and a beautiful spa like ensuite with a freestanding soaker tub, walk in shower, and his and hers sinks. There is also a spacious den or office space at the front of the home, and a convenient powder room down the hall. The fully finished basement offers a huge family and rec room area, two large bedrooms, a 4 pce bath, and has also been roughed-in for in-floor heat. Condo fees of $223.98 cover lawn mowing, snow shovelling, and maintenance of common areas. Allowances can be provided for blinds, and a washer and dryer through the builders suppliers to make this a completely move-in ready package. GST is already included in the purchase price, and 1 year builder warranty and 10 year Alberta New Home Warranty are included. Taxes have yet to be assessed. This home has an estimated completion date of February 2026.
| a week ago | Listing first seen on site | |
| a week ago | Listing updated with changes from the MLS® |
Listing information is provided by Participants of the Alberta One Realty Listing Services (Pillar 9). IDX information is provided exclusively for personal, non-commercial use, and may not be used for any purpose other than to identify prospective properties consumers may be interested in purchasing. Information is deemed reliable but not guaranteed. Copyright 2026, Alberta One Realty Listing Services (Pillar 9)
Last checked 2026-01-31 05:52 PM UTC



Did you know? You can invite friends and family to your search. They can join your search, rate and discuss listings with you.