3438 Victory WayOlds, AB T4H 0G8




Mortgage Calculator
Monthly Payment (Est.)
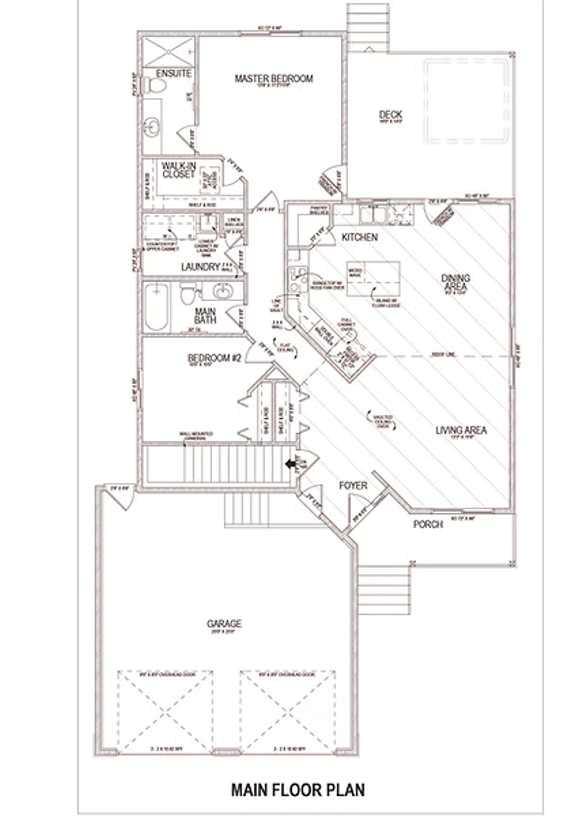
$2,828Welcome to this beautifully crafted 1,370 sq. ft. home in The Vistas, one of Olds’ most sought-after communities. Thoughtfully designed with high-end finishes and modern upgrades, this home offers breathtaking west-facing mountain views and a large covered deck—built with extra support for a hot tub—perfect for relaxing and entertaining. Inside, the open-concept layout features vaulted ceilings and premium upgrades throughout. The gourmet kitchen is a chef’s dream, complete with a gas cooktop, double wall oven, pot filler, under-cabinet lighting, and ample storage. The bright living and dining areas flow seamlessly to the expansive west-facing deck, offering the perfect space to take in the sunset. The main floor includes two bedrooms, including a luxurious primary suite with a spacious walk-in closet, direct access to the back deck, and a stunning ensuite featuring a large tiled shower. Additional highlights include R24 insulation in the walls, R50 blow-in attic insulation, 200-amp electrical service with plenty of room to expand, a garage floor drain, and durable composite decking. Located in The Vistas, this home offers direct access to scenic walking paths leading to the town’s major shopping center and Rotary Athletic Park.
| 3 weeks ago | Listing first seen on site | |
| 3 weeks ago | Listing updated with changes from the MLS® |
Listing information is provided by Participants of the Alberta One Realty Listing Services (Pillar 9). IDX information is provided exclusively for personal, non-commercial use, and may not be used for any purpose other than to identify prospective properties consumers may be interested in purchasing. Information is deemed reliable but not guaranteed. Copyright 2026, Alberta One Realty Listing Services (Pillar 9)
Last checked 2026-01-31 12:02 PM UTC



Did you know? You can invite friends and family to your search. They can join your search, rate and discuss listings with you.