2916 17 Street SECalgary, AB T2G 3W3




Mortgage Calculator
Monthly Payment (Est.)
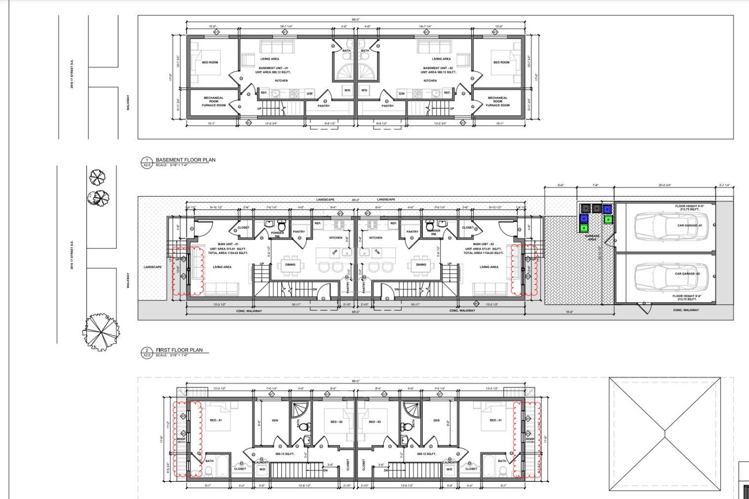
$2,277Attention Builders, Developers & Investors! Exceptional DP APPROVED for 4 UNITS, infill opportunity in Inglewood, one of Calgary’s most iconic and in-demand inner-city communities. Approved for a back-to-back duplex with two legal basement suites (4 units total), this project is truly shovel-ready. Utilities have been disconnected, the demolition permit is approved, and the interior of the existing home has already been stripped down to the studs — no asbestos remediation required. Build immediately and capitalize this season. Situated just 8 minutes from downtown, Inglewood is renowned for its vibrant character, strong rental demand, and long-term appreciation. The neighbourhood offers an unbeatable lifestyle with river pathways, parks, schools, breweries, boutiques, music venues, and some of Calgary’s top restaurants, all within walking distance. Easy access to transit and major roadways further enhances appeal for both end-users and tenants. This is a rare opportunity to develop in a high-barrier, mature inner-city location where new inventory is limited. Ideal for strong resale value, long-term rental hold, or investor exit, in a community that consistently outperforms. Don’t miss your chance to build in one of Calgary’s most established and sought-after neighbourhoods.
| 7 days ago | Price changed to $499,000 | |
| a week ago | Listing updated with changes from the MLS® | |
| 2 months ago | Listing first seen on site |
Listing information is provided by Participants of the Alberta One Realty Listing Services (Pillar 9). IDX information is provided exclusively for personal, non-commercial use, and may not be used for any purpose other than to identify prospective properties consumers may be interested in purchasing. Information is deemed reliable but not guaranteed. Copyright 2026, Alberta One Realty Listing Services (Pillar 9)
Last checked 2026-01-31 04:39 PM UTC



Did you know? You can invite friends and family to your search. They can join your search, rate and discuss listings with you.