1919 Carrington Boulevard NWCalgary, AB T3P 2B2

Mortgage Calculator
Monthly Payment (Est.)
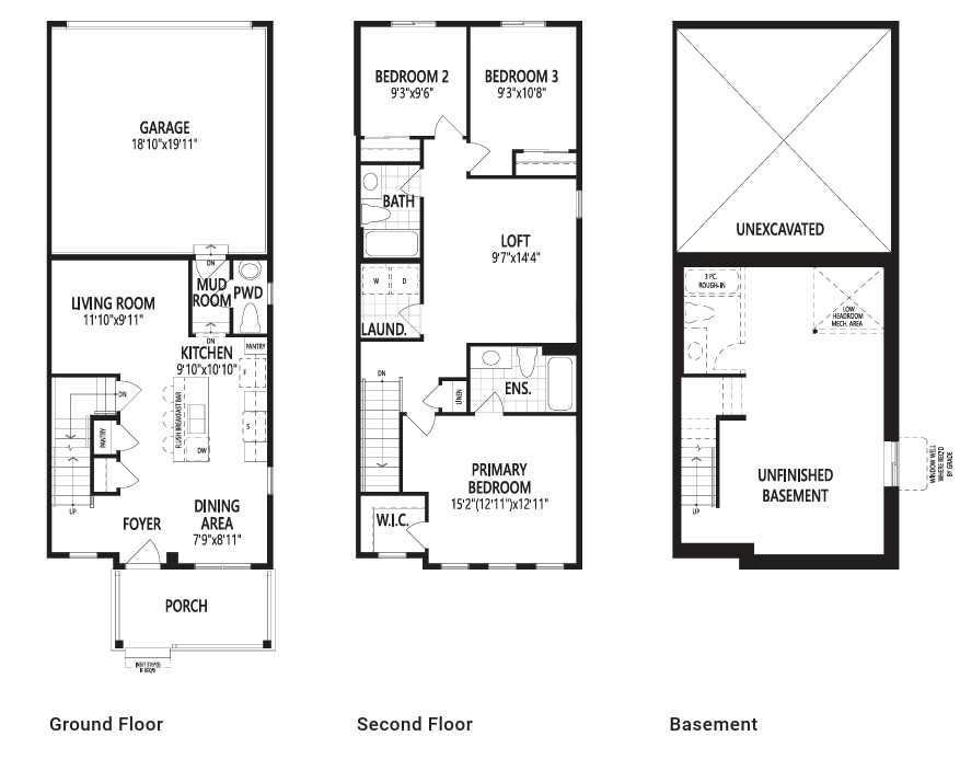
$2,208The Ripley End’s large front porch is a welcoming refuge to greet friends and connect with the neighborhood. This open concept living space creates the ultimate entertaining and family environment. A stunning kitchen with a quartz island breakfast bar invites everyone to pull up a chair, and a large living room offers extra space to hang out and relax. Upstairs, you'll find a conveniently located laundry room, a linen closet, a full bath, and a bright, spacious loft. Relax in the large primary bedroom, featuring a double hanging walk-in closet and an ensuite. Enjoy the convenience of a double attached garage, energy savings with 8 solar panels and the freedom of no condo fees. More parking, more storage, and more privacy -without the extra monthly costs. *Renderings and virtual tour are representative
| 6 days ago | Listing first seen on site | |
| 7 days ago | Listing updated with changes from the MLS® |
Listing information is provided by Participants of the Alberta One Realty Listing Services (Pillar 9). IDX information is provided exclusively for personal, non-commercial use, and may not be used for any purpose other than to identify prospective properties consumers may be interested in purchasing. Information is deemed reliable but not guaranteed. Copyright 2025, Alberta One Realty Listing Services (Pillar 9)
Last checked 2025-12-15 11:31 PM UTC



Did you know? You can invite friends and family to your search. They can join your search, rate and discuss listings with you.