708 Mandalay AvenueCarstairs, AB T0M 0N0




Mortgage Calculator
Monthly Payment (Est.)
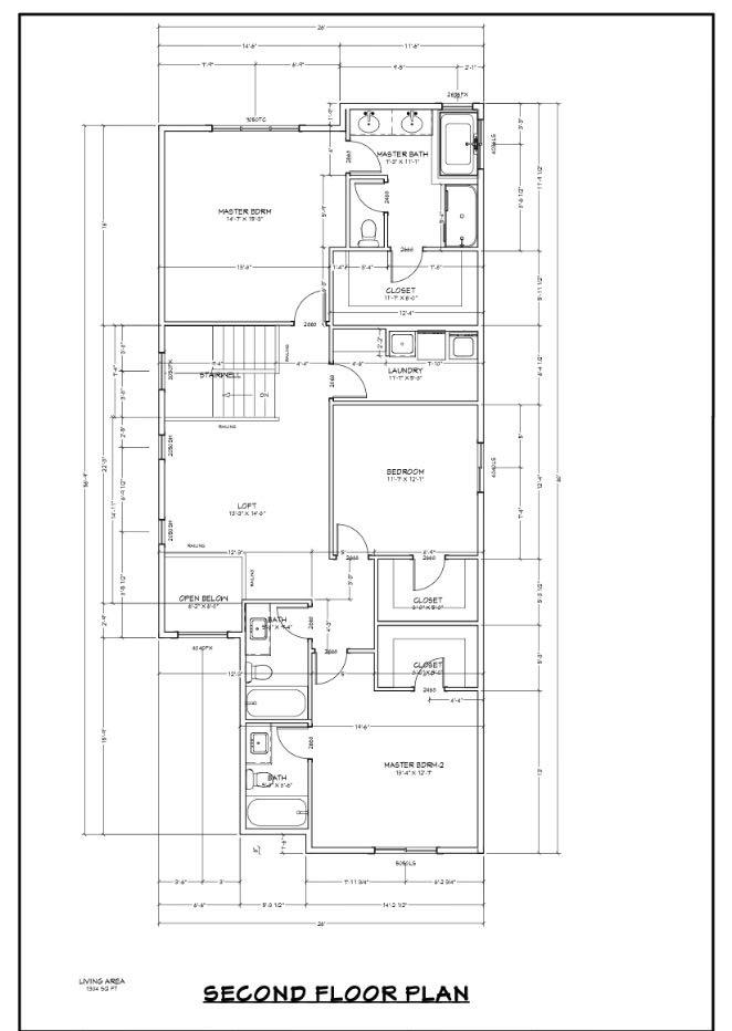
$3,467This stunning property is currently under construction, designed with modern finishes and exceptional craftsmanship throughout. The main floor offers a bright open-concept layout with a spacious living room, cozy gas fireplace, and a gourmet kitchen featuring a large island, premium cabinetry, and a walk-in pantry. A versatile flex room at the front is perfect for a home office or formal sitting area. Upstairs features 3 generous bedrooms, including two master suites — ideal for extended family or guests — along with a spacious loft area and a convenient laundry room on the upper floor. The primary suite boasts a luxurious ensuite with dual vanities, a soaker tub, and a walk-in closet. The walkout unfinished basement offers endless potential for future development. Enjoy peaceful views as the home backs onto a beautiful pond, providing privacy and a natural backdrop. Additional highlights include a triple garage and a rear deck. Located close to all amenities in Carstairs, including parks and playgrounds, this home perfectly combines luxury, comfort, and family-friendly living. *Floor plan images are for this property; other photos are from a different home and are shown only to illustrate the builder’s quality and craftsmanship. These images are for reference only, and final finishes, layout, and features may vary from the completed home.*
| 3 months ago | Listing first seen on site | |
| 3 months ago | Listing updated with changes from the MLS® |
Listing information is provided by Participants of the Alberta One Realty Listing Services (Pillar 9). IDX information is provided exclusively for personal, non-commercial use, and may not be used for any purpose other than to identify prospective properties consumers may be interested in purchasing. Information is deemed reliable but not guaranteed. Copyright 2026, Alberta One Realty Listing Services (Pillar 9)
Last checked 2026-01-31 08:54 AM UTC



Did you know? You can invite friends and family to your search. They can join your search, rate and discuss listings with you.